Jump to content
Annons

lordnicke

Medlem
  • Antal inlägg

    70
  • Gick med

  • Senast inloggad

Allt postat av lordnicke

  1. Hej Wellness, tack för infon! Sökte efter utegips 12,5mm men hittar inga sådana skivor? De enda utegipsen jag hittar är på 9.5mm? Håller väggen måttet om jag väljer utegips på 9.5mm? Har du även möjlighet att svara på hur mycket behöver jag bygga på väggen mot grannen om jag skulle vilja ha en högre ljudklass som B eller A? Det bor ett par pensionärer bredvid mig så kan jag dämpa ljudet så mycket som möjligt så vore det bra 🙂
  2. Så är det ju. Men då det finns en rätt begränsad budget för bygget så vill jag gärna vänta med att kontakta en akustiker och se om jag kan få hjälp här på forumet istället. Att rita konstruktionen är väl inga större problem då jag har ritat mina övriga handlingar till bygglovet och där hade dom inga invändningar. Men jag vill bara veta vad väggen ska bestå av. Någon mer som har tips och råd att ge så är det uppskattat!
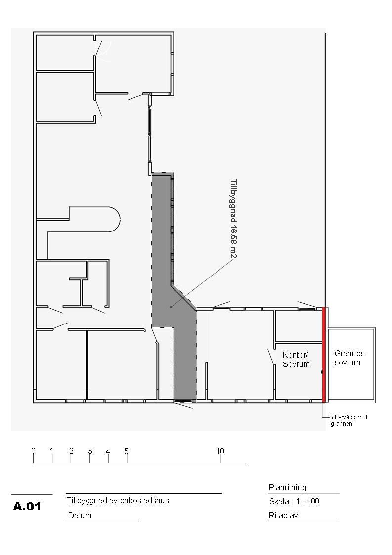
  3. Hej alla! Söker för närvarande bygglov för en tillbyggnad på huset och behöver hjälp med hur jag uppnår ljudklass C för en yttervägg som är mot grannen. Finns det någon som kan hjälpa mig kanske? Bilden visar min blivande planlösning och det är rödmarkerat där min yttervägg möter grannens. Hur uppnår jag ljudklass C? Och väggen ska även klara av brandklassen EI60, alltså att den ska klara av brand i 60 minuter. Mvh Niclas
  4. Lade en ganska stor order innan årsskiftet. Det var tungt för plånboken men känns som en riktigt bra investering för 3-5 år framöver. Apple iMac 27" Intel Quad Core i7 3.5GHz, 8GB, 1TB Flash Drive, NVIDIA GeForce GTX 775M 2GB http://www.komplett....-imac-27/804529 2x Crucial DDR3 1600MHz 16GB SODIMM for Mac = 32 gig ram http://www.komplett....-for-mac/772723 Pegasus J4 Thunderbolt HDD/SSD Storage http://www.itpaket.s...ducts_id=249718 Samsung SSD 840 EVO 1TB BK OEM http://www.komplett....b-bk-oem/792049 Apple Thunderbolt Cable 2,0 m http://www.komplett....ble-20-m/773176
  5. KWS kanske har SATAII och du har SATAIII ?
  6. Hoppad du får i ordning på det... Jag har tänkt köpa 2st 27" skärmar och hade tänkt köpa dom som du har... Nu får man kanske ta sig en funderare..
  7. Lider med dig... Tror att det bästa är att snacka med Ableton.
  8. Får väl säga som dig när det gäller att rensa upp i botten. Men även volymautomatisering på enskilda kanaler för att försöka skapa en sjysst balans.
  9. Har inte nått av dom grejjerna men priset verkar ju vara extremt bra...
  10. Vad gäller trummorna så använder jag bara samplingar. Innan använde jag mig mycket av vengeance samplingar men har insett att dom redan är så oerhört processade så det är inte ofta dom hamnar i mina projekt längre.. Tycker du ska ta dig en titt på Wave Alcemy istället. Dom gör riktigt cleana grejjer
  11. Det var det jag menade.. Ska kolla in klippen! Tack
  12. Brukar ha eq, vintagewarmer 2, multibandskompressor, the glue å sist limiter
  13. Riktigt sugen på att köpa en sån... Vad tycker du om kvalitén överlag? Fångar den upp mycket brus?
  14. Tja! Vilka är problemområdena som du pratar om? Så jag vet vad jag ska tänka på innan man skickar iväg material på mastring
  15. jävligt bra jobbat! låter sjukt bra!
  16. Titta in remixen längst ner på hans Soundcloud. Zedd remixen.. Den la han upp för 7 mån sen. YTTERST tvek om han kan lära sig att prodda sådär efter 5 månader om det nu är så att han bara har proddat ett år. OM det nu är så att han bara har proddat 1 år så är det onekligen jävligt starkt jobbat. just sayin'
  17. Propellerheads Rebirth följt av Reason. Numera Ableton Live
  18. Vilken tur att jag köpte en 830 på 256 gig i onsdags då 🙂 iMacen från 2009 är lite trött nu.
  19. Vet inte om det är den bästa direkt men har du M4L (max for live) så kan du kolla in Granulator. https://www.ableton....cks/granulator/ Själv har jag inte testat den men den verkar cool och ser fram emot när Live9 släpps så jag får max for live och kan testa själv.
  20. Jag gillar den också. Den är speciellt cool på bas. Fungerar dock utmärkt att feta till sin kick med Sällan jag slänger in den på master buss, men om man ska det så ska man vara försiktig så man inte krossar allt i dess väg 🙂
  21. http://www.synleor.com/improvisator.html Har jag kasst med inspiration så brukar denna hjälpa.
×
×
  • Skapa ny...

Viktig information om kakor (cookies)

Vi har placerat några kakor på din enhet för att du bättre ska kunna använda den här sajten. Läs vår kakpolicy och om hur du kan ändra inställningar. Annars utgår vi från att du är bekväm med att fortsätta.